La rehabilitación de un portal clásico con las exigencias modernas de nuestros tiempos bajo reglamentos arquitectónicos siempre es un reto; son varios los clientes para valorar el trabajo y además hemos de ser fieles al espacio en sí.
Hablamos de un edificio del Ensanche de Bilbao; estilo clásico para unas viviendas centenarias de construcción mixta. En el interior una puerta dividía dos ambientes, la zona de escaleras y la zona de buzones y ascensor.
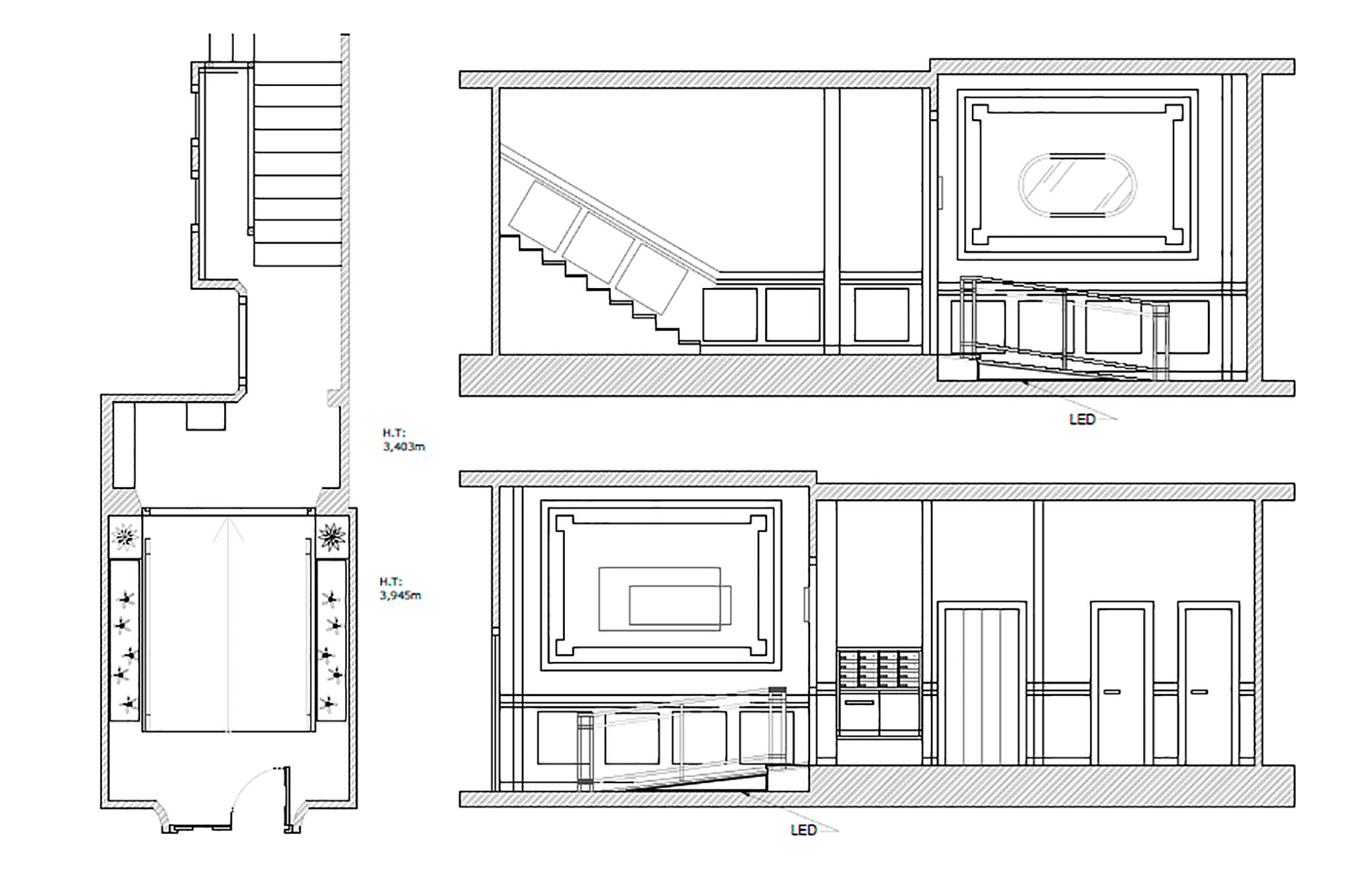
La única intervención previa que se había hecho en el portal fue pintar las paredes que ya no estaban en muy buen estado. Fue la necesidad de habilitar una rampa de minusvalía lo que les llevó a plantearse hacer una reforma. Dicha reforma conlleva el uso de suelo antideslizante y barandillas reglamentarias.
Nuestro trabajo consistía en eso, rehabilitar un portal clásico con las exigencias modernas de nuestros tiempos bajo reglamentos arquitectónicos.
Pues bien, después de trabajar los planos de planta, llegamos a la conclusión de realizar un único acceso con una rampa, evitando dividir el total del espacio por una barandilla entre la rampa y las escaleras. La sensación visual iba a ser más limpia y amable indudablemente.
Quisimos respetar el carácter de "portal clásico" y para ello elegimos un suelo oscuro con una sutil veta blanca desde la entrada hasta la zona de ascensor. Eliminamos la puerta divisoria y dejamos el marco antiguo. Saneamos su zócalo original y suprimimos molduras para modernizarlo. Realizamos un mueble de buzones en madera del color del zócalo, con una puerta para el reciclaje y otra para uso de los vecinos. También creamos un banco en madera justo en el rellano entre los buzones y el ascensor para hacer la estancia más acogedora.
Elegimos un color para la pared y toda la escalera que contrastase con el blanco del zócalo alto y la madera oscura. El color seleccionado fue un topo, entre el gris y el marrón, realzando así la moldura clásica y aportando elegancia.
Para las paredes laterales del primer tramo del portal, donde se sitúa la rampa, optamos por una solución que sirviera para iluminar el espacio y decorarlo: en una pared realizamos una escultura icónica de Zaila retro-iluminada realizada en chapas de hierro natural y frente a ella un espejo con formas clásicas, también iluminado, creando un espacio único. Acompañamos la iluminación de día con unos apliques en color oro y por la noche, decidimos marcar la rampa con unas tiras de led a ambos lados proyectando la luz hacia unos centros de vegetación inerte con piedras blancas y rocas. En los podios, también a ambos lados de la rampa, realizamos unas jardineras en hierro natural con unos pinos decorativos, dando el toque vegetal necesario.






